Modularna gradnja LGS sistem
Modularne kuće
Modularne kuće predstavljaju podtip montažnih kuća, tj. jedne su od vrsta montažnih kuća. Sastoje se od delova, odnosno modula koji su prethodno izrađeni u fabričkim uslovima, odnosno čak do 90% modularnih kuća je završeno u fabrici. Potpuno automatizovana linija za proizvodnju LGS konstrukcija omogućava da se definišu različiti oblici gotovih modula koji mogu da se kombinuju – multipliciraju u različitim oblicima u formiranju objekata. Na taj način se u proizvodnji uvodi “serijska proizvodnja modula” koja maksimalno optimizuje proizvodnju.
Prikaz modula i neke od mogućih kombinacija u formiranju modularnih objekta:
Modul 1

- Soba – 10,87 m2
- Toalet – 3,18 m2
NETTO: 14,05 m2
BRUTO: 18 m2
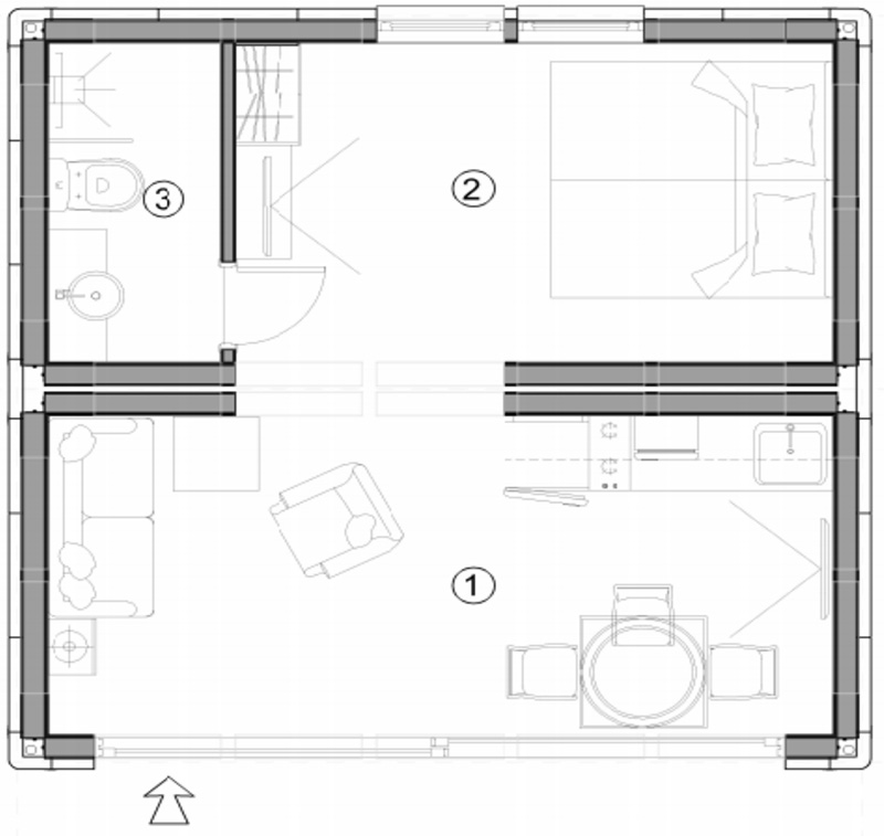
Modul 2

- Dnevna soba – 15,13 m2
- Spavaća soba – 10,87 m2
- Toalet – 3,18 m2
NETTO: 29,18 m2
BRUTO: 36 m2
Modul 2.1

- Dnevna soba – 14,31 m2
- Hodnik – 1,55 m2
- Toalet – 3,18 m2
- Spavaća soba – 9,48 m2
NETTO: 28,52 m2
BRUTO: 36 m2
Modul 3

- Hodnik – 4,36 m2
- Dnevna soba – 15,13 m2
- Kuhinja/trepezarija – 8,31 m2
- Toalet – 2,76 m2
- Spavaća soba 1 – 6,30 m2
- Spavaća soba 2 – 6,30 m2
NETTO: 43,16 m2
BRUTO: 54 m2
Modul 4

- Hodnik – 5,47 m2
- Toalet – 2,76 m2
- Spavaća soba 1 – 9,54 m2
- Dnevna soba – 29,44 m2
- Spavaća soba 2 – 10,88 m2
Trepezarija ili terasa
NETTO: 58,09 m2
BRUTO: 72 m2
Multipliciranjem osnovnog modula možemo dobiti različite forme i dimenzije objekata (2-sobni, 3-sobni, 4-sobni itd), veliki broj kombinacija slaganja modula omogućuje formiranje različitih stambenih jedinica u bilo koju dizajniranu konfiguraciju. Moduli vam omogućavaju da stvorite mnogobrojne opcije podešavanja, istovremeno održavajući istu nosivu strukturu jedinice. Modularna arhitektura postaje alternativno rešenje za tradicionalnu gradnju – ima sve prednosti tradicionalne arhitekture i, uz to, nove karakteristike koje prevazilaze standardnu gradnju. Najvažniji element modularne arhitekture je brzina proizvodnje, transporta i montaže zgrade do potpuno opremljenog stanja. Vreme za obavljanje takvih aktivnosti je i do deset puta kraće nego u standardnoj gradnji. Modularna arhitektura je takođe lakša, zahvaljujući čemu pruža široke mogućnosti proširenja i nadogradnje postojećih zgrada. Svaki element modularne arhitekture dizajniran je s posebnom pažnjom tako da kombinovani moduli stvaraju prostor koji zadovoljava sve funkcionalne potrebe, a istovremeno održavajući laganu i lako povezljivu strukturu.
3D prefabrikati
3D prefabrikati (moduli) su gotove prostorije izrađene od spojenih 2D prefabrikata, dorađenih svim potrebnim završnim radovima unutar modula, te se kao gotov proizvod, potpuno opremljen transportuju na gradilište i postavljaju na svoje mesto.
3D prefabrikate možemo podeliti na:
- Velike module
- Male module
Veliki moduli:
Veliki moduli se rade kao gotove jedinice, kao što su na primer:
- Hotelske sobe modularnih hotela
- Smeštajne jedinice studentskih domova, staračkih domova, bolnica…
- Smeštajne jedinice hotela u smislu depadansa- samostalnih jedinica (tiny house)
Glavna odlika ovakvih modula je izuzetna brzina gradnje- montaže, s obzirom na to da je stepen prefabrikacije potpuno završen prostor, sa urađenim svim završnim radovima, uključujući čak i opremanje fiksnim i mobilnim enterijerom. Takođe u ovakvom modulu je integrisano i potpuno završen toalet.
Ograničenja ovakvih modula se uglavnom odnose na transport u smislu dimenzija (2.5x13x3m redovni transport, 3.5x13x3 specijalni, bez pratnje, a preko toga sa pratnjom), kao i u smislu cene transporta po m2, u odnosu na transport 2D panela, ali je ušteda na vremenu montaže i radnoj snazi na gradilištu ogromna.

Primer montaže gotovih modula
Mali moduli:
Mali moduli podrazumevaju kompletnu prefabrikaciju toaleta (bathroom pods).
Konstrukcija toaleta podrazumeva pod koji može biti betonski ili LGS, zidove i plafon, koji su LGS konstrukcije. Ispuna zida je mineralna vuna, a unutrašnja obloga po zahtevu i uslovima investitora, ali uglavnom od gipsanih vlagootpornih ploča sa celuloznim vlaknima (npr VIDIWALL). Pod je od drvocementne ploče, ako nije betonski. Toalet je sa unutrašnje strane hidroizolovan, sa ugrađenom keramikom, sanitarijama, armaturama, instalacijama grejanja, elektroinstalacija, vodovoda i kanalizacije, kao i kopletnog kupatilskog nameštaja, staklenih pregrada i sl.
Konekcije instalacija se unapred dogovaraju sa investitorom. Montaža komplet završenog kupatila podrazumeva transport modula na lokaciju i nivelacija istog.